Office rental
Sokilnyky village, Zlitna street, building 8
Rental department: +380675533135
zlitbcentre@ukr.net
On the 1st floor the office complex has a large spacious lobby with security and a conference room for your comfort. The modern building in terms of technology has a stylish exterior shell and is equipped with a modern automatic climate control system, internal wiring, that allows maximum flexibility in the organization of workplaces, one passenger elevator and card access control.
The newly built, modern office center is designed to create 110 workplaces
Parking plan
Designed for 41 parking space
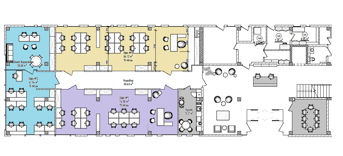
1st floor plan
Available spaces for rent on the 1st floor are 277.86 m2 in total.
At the request of the tenant, it is possible to rent each separate room.
2nd floor plan
Available space for rent on the 2nd floor are 166.6m2 in total.
At the request of the tenant, it is possible to rent each separate room.


TECHNICAL SPECIFICATIONS
VENTILATION
Air exchange of the office premises is carried out by combined extract and input ventilation on the basis of the German Rosenberg equipment, with air preparation (heating, cooling) at the rate
45 cubic meters/hr per employee.
CONDITIONING
Besides supplying prepared cooled air with the ventilation system all office premises are air-conditioned on the basis of Japanese company Fujitsu, which provides keeping of comfortable air temperature during the whole year.
HEATING
Water heating due to the underfloor heating in all offices of the office center.
міжкімнатні двері тут: https://door.ua/mizhkimnatni-dveri
міжкімнатні двері тут: https://dveri.fabryka.ua/%D0%BC%D1%96%D0%B6%D0%BA%D1%96%D0%BC%D0%BD%D0%B0%D1%82%D0%BD%D1%96-%D0%B4%D0%B2%D0%B5%D1%80%D1%96
міжкімнатні двері тут: https://lvivski.ua/dveri-mizhkimnatni
вхідні двері тут: https://lvivski.ua/dveri-vkhidni
вхідні двері тут: https://door.ua/vkhidni-dveri
вхідні двері тут: https://dveri.fabryka.ua/%D0%B2%D1%85%D1%96%D0%B4%D0%BD%D1%96-%D0%B4%D0%B2%D0%B5%D1%80%D1%96
пластикові вікна: https://vikna.fabryka.ua/
пластикові вікна: https://gurtom.lviv.ua/vikna-plastykovi
пластикові вікна: https://lvivski.ua/vikna
гаражні ворота: https://vorota.cc/
гаражні ворота: https://gurtom.lviv.ua/vorota/sektsiini-vorota
гаражні ворота: https://vorota.fabryka.ua/
пейнтбол Львів - https://deltaclub.lviv.ua/
страйкбол Львів - https://deltaclub.lviv.ua/posluhy/straikbol
лазертаг Львів - https://deltaclub.lviv.ua/posluhy/lasertag
макаронные линии - https://bid.com.kz/ru/makaronnye-linii/
макаронные прессы - https://bid.com.kz/ru/makaronnye-pressy/
оборудование для производства макарон - https://bid.com.kz/ru/
оборудование для производства макаронных изделий - https://bid.com.kz/ru/
оборудование для макаронных изделий - https://bid.com.kz/ru/
The conditions for the readiness of the rented premises:
decoration of common areas (kitchen, hall, toilets);
"free space" premises type;
Grigliato ceiling type;
underfloor heating and carpeting;
power supply is distributed to each floor;
modern air conditioning and ventilation system.
The rent consists of:
Basic rental rate
Operating expenses
Extra charges for utilities




